Vendita
Attico e superattico in vendita via Monterone, Roma, Centro Storico. € 8.000.000
Quartiere: Centro Storico. V. Monterone, 00186 Roma RM, Italia
Descrizione
Siamo nel cuore di Roma, ad un passo dalle piazze Navona, di Sant’Eustachio, del Pantheon.
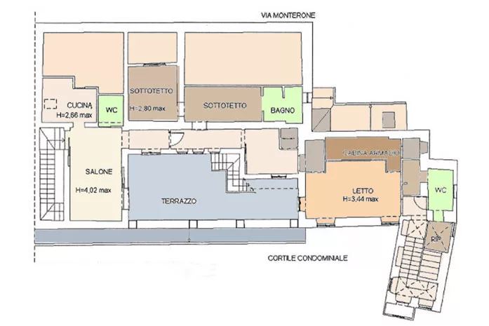
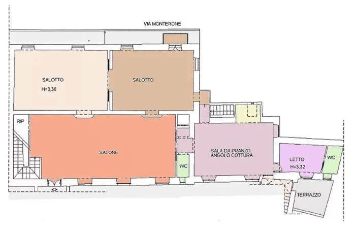
Al quarto e al quinto piano di un importante palazzo storico, l’attico si compone di due unità immobiliari connesse da due scale interne e da un ascensore privato che arriva sino al terrazzo superiore.
La metratura interna rasenta i 470 mq commerciali, altri circa 45 mq sono di terrazze e balconi.
Gli affacci sono aperti già al quarto, con una lunga balconata rivolta ad est. Questo è il piano della rappresentanza, con un’enorme sala da pranzo e un grande soggiorno in due tempi; nella parte finale della casa è la sorprendente cucina, ma anche una cameretta con un suo bagno e il suo terrazzino.
Al quinto – in parte mansardato – è la zona più riservata della casa con le camere, lo studio e un cucinotto d’appoggio; qui la vista è da togliere il fiato: inquadra la cupola – tra le altre – del Pantheon, di Sant’Andrea della Valle, del Gesù, il tortiglione del campanile di Sant’Ivo alla Sapienza; mentre restano ben visibili sullo sfondo Villa Borghese e Trinità dei Monti, il Campidoglio e l’Aventino.
Il riscaldamento è autonomo ed è istallato un impianto di aria condizionata.
Dati immobile
Piano: 2 livelli
Stato immobile: ristrutturato
Tipo di riscaldamento: autonomo
Caratteristiche
Planimetria
Planimetria
Attico e superattico in vendita via Monterone, Roma
- Locali 9
- Bagni 5
- Piano 2 livelli
- MQ 470
Mappa
