Ufficio in affitto via Guido d’Arezzo, Roma (Cod. 113933)

Home » Proprietà » Ufficio in affitto via Guido d’Arezzo, Roma

Attenzione! L'immobile cercato: "Ufficio in affitto via Guido d’Arezzo, Roma" è stato già venduto o affittato.

Descrizione dell'immobile venduto o affittato

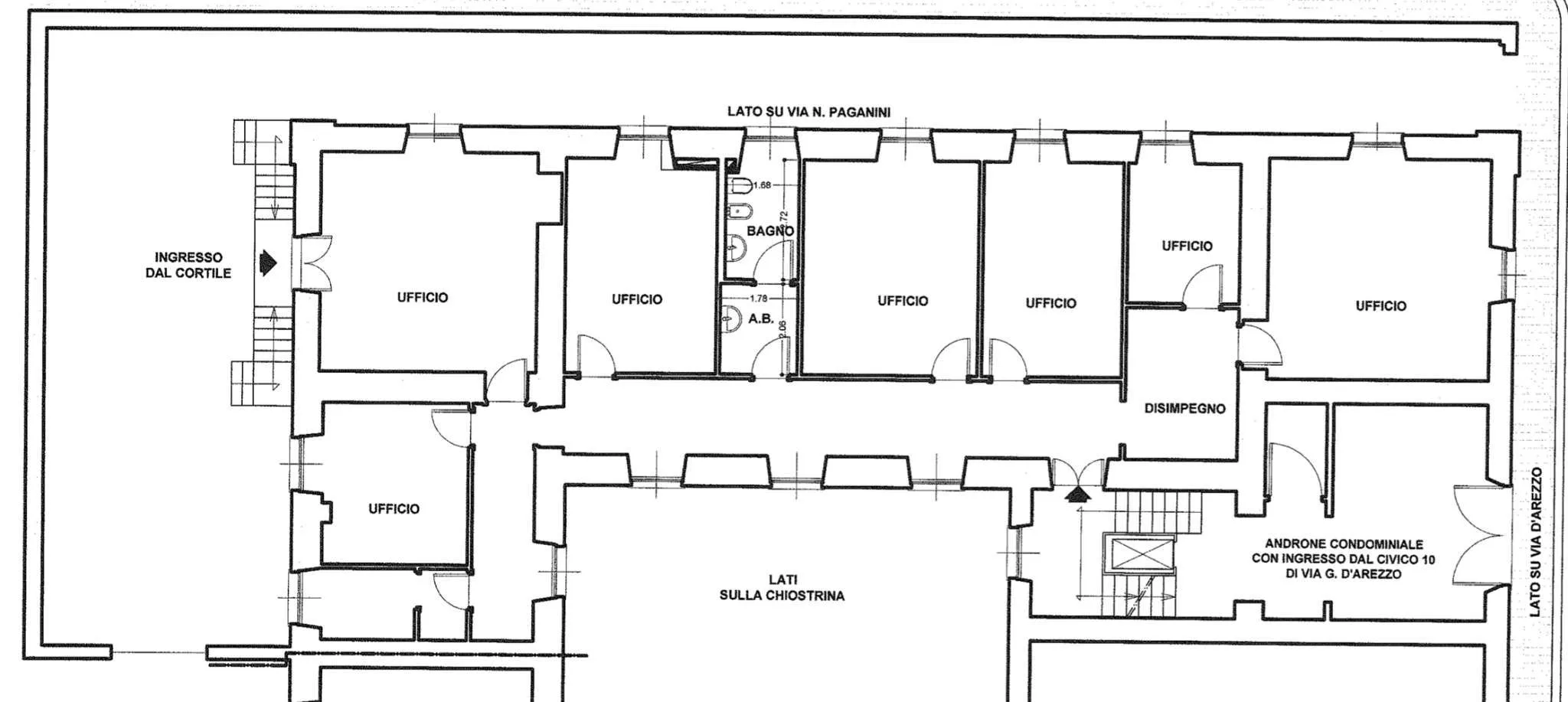
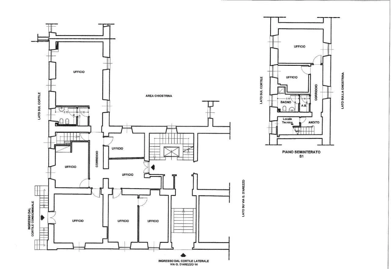
Pinciano – Piazza Verdi – Via Guido d’Arezzo 14 – 10 . Luminoso ed elegante ufficio (cat.A10) di ampia metratura (473 mq catastali) al piano rialzato di un signorile palazzo degli anni ’30. L’immobile si sviluppa per lo più al piano rialzato (una parte con i servizi si trova nel piano seminterrato) ed ha affacci tutti interni e non su strada, per cui è molto silenzioso. La struttura è composta da vari ambienti più o meno ampi (attualmente sono una ventina di locali) 4 bagni, due ripostigli. L’ufficio ha in uso esclusivo uno spazio, all’interno del giardino con accesso dal civico 16, dove è possibile parcheggiare 6 automobili e vari ciclomotori, biciclette o altro. L’immobile ha due ingressi: un ingresso dal civico 10 ed uno dal civico14, oltre ai due ingressi principali ci sono tre altre possibilità di accesso dal cortile sul retro dove vengono parcheggiate le auto. Disponibile da gennaio 2026.
Tripla esposizione Nord-Est, Sud-Est e Sud-Ovest
Contratto 6+6 – Canone richiesto € 12.000,00 + IVA – Spese condominiali circa 4.500,00/€ anno
deposito 3 mensilità o fidejussione bancaria per pari importo.

Cerca tra i nostri immobili

oppure guarda l'elenco dei nostri immobili in affitto e in vendita.

Immobili a Roma

Vendita

Appartamento in vendita via Aurelia, Roma (Cod. 104665)

€ 456.000
  • Locali 3
  • Bagni 2
  • Piano 2
  • MQ 82

Vendita

Appartamento in vendita via Federico Tozzi, Roma (Cod. 114588)

€ 435.000
  • Locali 4
  • Bagni 1
  • Piano 4
  • MQ 130

Affitto

Appartamento in affitto viale Bruno Buozzi, Roma (Cod. 111161)

€ 2.400
  • Locali 3
  • Bagni 1
  • Piano 3
  • MQ 96

Vendita

Appartamento in vendita via Sergio Tofano, Roma

€ 285.000
  • Locali 4
  • Bagni 2
  • Piano 3
  • MQ 113
In trattativa

Affitto

Villino semi indipendente in via del Casale San Pio V, Roma

€ 2.700
  • Locali 6
  • Bagni 3
  • Piano R
  • MQ 155
In trattativa

Vendita

Ufficio in vendita in piazzale di Porta Pia, Roma

€ 1.380.000
  • Locali 9
  • Bagni 2
  • Piano 3
  • MQ 288

Totale incarichi da inizio attività

+ 3.000

Persone che hanno visto i nostri annunci online fino ad oggi

+ 10.000.000

Visualizzazioni pagine del sito fino ad oggi

+ 1 Milione

Follower sui Social

+ 5.000