Affitto
Villa in affitto via del Buon Ricovero, Roma, Cassia. € 2.600
Quartiere: Cassia. Via del Buon Ricovero, 00189 Roma RM, Italia
Descrizione
Cassia Giustiniana, vicinanza Scuole Internazionali, Metropolitana cielo aperto (Città del Vaticano/Viterbo) e G.R.A, in contesto residenziale nel verde con Portiere, proponiamo in locazione un magnifico Casale di mq. 300, su 3 livelli fuori terra, affaccio su tre lati, ampio giardino di 400 mq, con doppio Box auto.
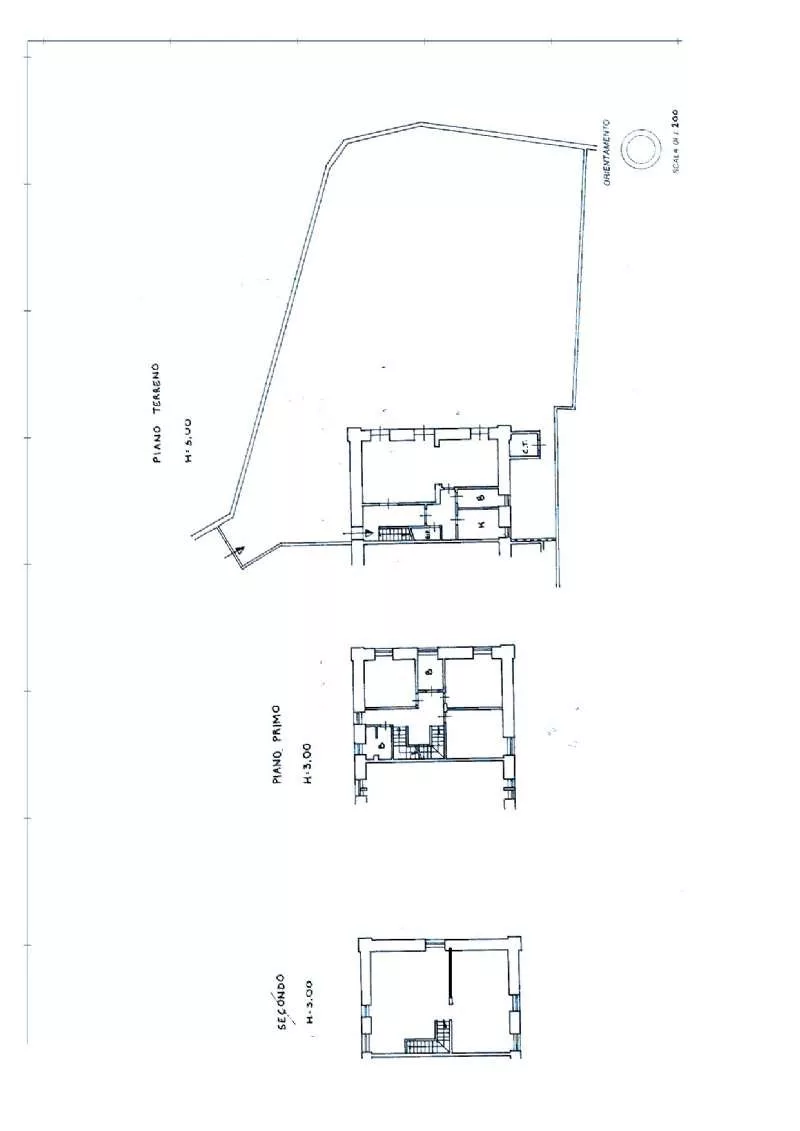
L’immobile si sviluppa su tre livelli:
Piano terra; ingresso, ampio salone con accesso al giardino, cucina e bagno.
Piano 1°; tre camere matrimoniale, due bagni.
Piano 2°; due camere matrimoniali, più ampia sala relax con vista panoramica.
Richieste persone referenziate o Fidejussione pari a 6 mensilità, rinnovabile per l’intera durata del contratto.
Dati immobile
Piano: 3 livelli
Stato immobile: ottimo
Tipo di riscaldamento: autonomo
Classe Energetica: f
- A+
- A
- B
- C
- D
- E
-
F
Classe: F
- G
- H
Caratteristiche
Planimetria
Planimetria
Villa in affitto via del Buon Ricovero, Roma
- Locali 6
- Bagni 3
- Piano 3 livelli
- MQ 300
Mappa
