Vendita
Villa in vendita via Luson, Roma, Infernetto. € 530.000
Quartiere: Infernetto. Via Luson, 00124 Roma RM, Italia
Descrizione
In una delle zone più residenziali e ben servite dell’Infernetto, proponiamo una splendida villa bifamiliare trilivelli fuori terra, completamente mutuabile, immersa nel verde e dotata di ogni comfort moderno.
La proprietà gode di un’ottima esposizione, che garantisce luminosità per tutto l’arco della giornata, ed è circondata da un curato giardino di 500 mq, un’oasi di tranquillità perfetta per vivere all’aperto in ogni stagione.
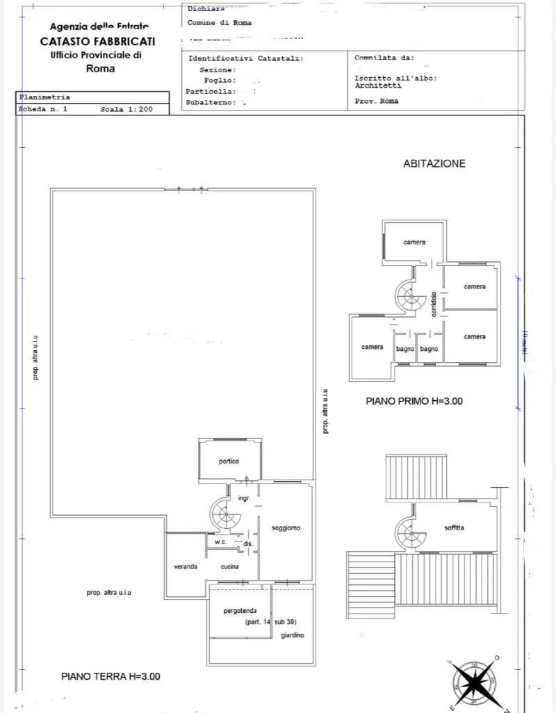
Attraversando un elegante portico in vetro, si accede all’abitazione: un ampio salone doppio con vista aperta sia sul giardino frontale che su quello retrostante, attrezzato con pergotenda, barbecue e forno a legna per le pizze, ideale per momenti conviviali.
Al piano terra troviamo, inoltre, una cucina abitabile, un secondo portico verandato, perfetto come zona tinello e un bagno.
Una scala di design conduce al primo piano, dove un comodo disimpegno introduce la zona notte composta da quattro camere da letto e due bagni, tutti ben rifiniti e con ottima distribuzione degli spazi.
Al secondo piano, una soffitta luminosa con altezza media di 2,30 mt e doppio affaccio offre ulteriori spazi vivibili, ideali come studio, sala hobby o camera per gli ospiti.
La villa è completa di dotazioni di alto livello:
• Coibentazione termica
• Vetri blindati e tapparelle elettriche
• Zanzariere e tende da sole automatizzate
• Armadi a muro su misura
• Impianto di irrigazione automatico con pozzo
• Impianto di allarme Verisure perimetrale e volumetrico
• Caldaia a condensazione
• Possibilità di installare ascensore
Una soluzione perfetta per chi cerca un’immobile di rappresentanza, pronta da abitare, con ampi spazi interni ed esterni, comfort moderni e una posizione comoda e tranquilla, vicina a tutti i servizi principali.
Dati immobile
Piano: 3 livelli
Stato immobile: ottimo
Tipo di riscaldamento: autonomo
Classe Energetica: d
- A+
- A
- B
- C
-
D
Classe: D
- E
- F
- G
- H
Caratteristiche
Planimetria
Planimetria
Villa in vendita via Luson, Roma
- Locali 8
- Bagni 3
- Piano 3 livelli
- MQ 248
Mappa
