Vendita
Quartiere: Str. Vicinale Pavoncelli, 70023 Gioia del Colle BA, Italia
Descrizione
La proprietà’ che proponiamo in vendita, con successiva possibilità’ di frazionamento, e’ costituita da un insieme di fabbricati residenziali, costruzioni rurali e terreni agricoli che insistono su un fondo di oltre 20 ettari con recinzione perimetrale e delimitazione interna con tradizionali muretti a secco tipici della zona.
Nello specifico sono presenti tre distinti corpi di fabbrica come di seguito indicato:
A – Abitazione principale che incorpora due antichi trulli preesistenti con una consistenza attuale (vd. progetto di ampliamento esemplificato nella sezione fotografica) di mq. 129 in cui si trovano due camere da letto, due bagni, soggiorno, pranzo, cucina, un ulteriore soggiorno oltre gli spazi esterni pertinenziali;
B – Villa su due livelli allo stato grezzo con una consistenza di 192 mq.;
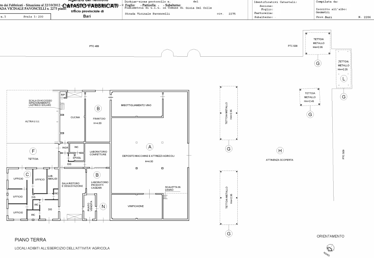
C – Capannone industriale con zona abitativa, uffici, laboratori, magazzini e cisterna.
I terreni hanno diverse destinazioni d’uso in base alle colture praticate tra cui vigneto, oliveto, frutteto, mandorleto, seminativo. Sono presenti un pozzo artesiano con sistema di filtraggio e trattamento delle acque, un acquedotto sotterraneo che alimenta le diverse utenze, un generatore di corrente, l’impianto elettrico e numerosi impianti e macchinari destinati alla produzione di olio e vino. Per gli aspetti tecnici e la descrizione analitica delle singole particelle e’ disponibile, a richiesta, una esaustiva perizia asseverata del 2023 che riporta anche i singoli valori di stima. Interessante opportunita’ di investimento polivalente in Puglia a breve distanza dall’aeroporto internazionale di Bari e da primarie destinazioni turistiche quali Alberobello e Matera. La possibilità’ di frazionare la proprietà’ successivamente all’acquisto consente varie soluzioni di utilizzo tra le quali produzione di vino, olio e conserve di frutta, agriturismo, attivita’ ricettiva, ristorazione, commercio e, infine, alienando a terzi le strutture produttive ed i terreni agricoli, una gradevole residenza permanente o stagionale riqualificando l’attuale casa che incorpora i due antichi trulli.
Extended divisible property in Gioia del Colle consisting of residential buildings and land.
Interesting multipurpose investment opportunity in Puglia a short distance from Bari international airport and primary tourist destinations such as Alberobello and Matera. The possibility of dividing the property after purchase allows for various usage solutions including the production of wine, oil and fruit preserves, agritourism, accommodation, catering, trade and, finally, selling the production and production facilities to third parties. the agricultural land, a pleasant permanent or seasonal residence by redeveloping the current house which incorporates the two ancient trulli.
Dati immobile
Stato immobile: buono
Tipo di riscaldamento: autonomo
Caratteristiche
Planimetria
Mappa
Immobile nella mappa
